北大青鳥技術資料
聯系我們
- 聯系人:郭經理
- 傳真:010-69552656
- 電話:400-0346-119
- 電話:010-57113119
- 郵箱:506665119@qq.com
- 地址:北京通州區新華北路117號
北大青鳥J-SAP-M-VM3332A消火栓按鈕
時間:2018-11-24 15:15:06 品牌: 北大青鳥
![[!--oldtitle--]](/d/file/baojingshebei/2018-11-24/c84414788930e9228cd68b42675cacd0.jpg)
1、J-SAP-M-VM3332A消火栓按紐內置微處理器;
2、采用SMT表面貼裝工藝;
3、手動推進彈簧按鈕后,內部開關動作,報警信號送到控制器,采用專用工具進行復位;
4、可以通過硬線直接啟動消防水泵,并接收其應答信號;
5、二總線,無極性。低功耗,遠傳輸距離1500m;
6、插拔式結構,可像安裝探測器一樣先將底座安裝在墻上,易于施工、維護;為了得到更好的防護等級,可以通過緊固螺絲將消火栓按鈕緊固在安裝底座上。
二、J-SAP-M-VM3332A消火栓按鈕的主要技術指標1、工作電壓:DC19-28V(控制器提供,調制型)
2、工作溫度:-10℃-50℃
3、儲存溫度:-20℃-50℃
4、相對濕度:≤95%(40±2℃)
5、使用環境:室內型,具備防水功能
6、監視電流:≤0.3mA(24V)
7、報警電流:≤3mA(24V)
8、確認燈:監視狀態瞬時微亮,報警常亮(紅色),水泵應答燈為綠色,動作后常亮。
9、外形尺寸:88.5mm長X88.5mm寬X52mm高
10、編址方式:使用專用電子編碼器
11、線制:二總線,無極性
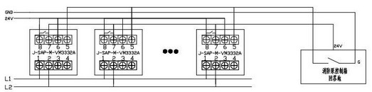
三、J-SAP-M-VM3332A消火栓按鈕接線1、端子1和2分別接二總線L1和L2;
2、端子7、8正常時為常開觸點,手動報警按鈕按下時閉合。
3、端子6、5分別接24V電源的正和消防泵的應答信號,以實現點亮啟泵回答燈。
接線圖:

以上是J-SAP-M-VM3332A消火栓按紐的詳細信息,如果您對J-SAP-M-VM3332A的價格、廠家、型號、圖片有什么疑問,請聯系我們獲取J-SAP-M-VM3332A消火栓按紐的新信息。








